Ottignies
275.000 €
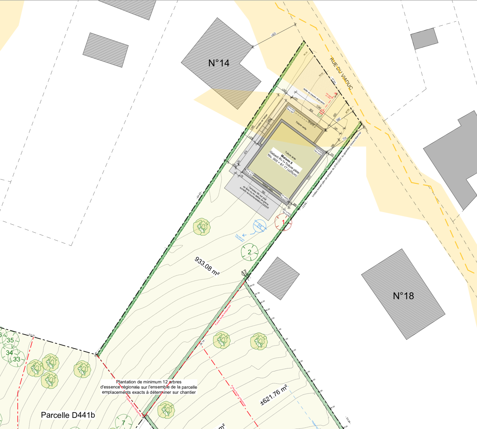
Votre futur maison sur les hauteurs d'Ottignies
Voici un des rares terrains disponible au cœur d'Ottignies dans une petite rue très calme. En effet, la localisation de ce beau terrain en légère pente descendante est idéale. Il est très proche de la gare et des écoles, mais dans une petite rue très calme et sans issue. Le "Blocry" de Louvain-la-Neuve est également à quelques centaines de mètres de là. L'orientation SUD arrière est aussi un superbe atout pour envisager de construire une villa qui sera parfaitement orientée. Le terrain a déjà obtenu un permis d'urbanisme qui permettra à son futur propriétaire de démarrer immédiatement le chantier et de profiter d'un plan d'architecte très bien pensé : une maison contemporaine à toiture plate de plus de 200 mètres carrés avec 4 chambres et un bureau. Intéressés ? Contactez-nous afin de recevoir le dossier complet.Eigendomsdetails
| Totale oppervlakte | 933 m² |
| Oppervlakte terrein | 933 m² |
| Bebouwbare oppervlakte | 390 m² |
| Breedte van het perceel | 1.750 m |
| Diepte van het perceel | 6.483 m |
| Aansluiting riolering | ja |
| Gas | ja |
| Beschikbaarheid | immédiatement |